Madrid - Alquiler por habitaciones
- Ocupantes 1
-
1 Cama individual
1 - 1 Dormitorio 1
- 2 baños 2
- 85 m² 85 m²
- wifi wifi
› Alquiler por habitaciones de vacaciones España › Alquiler por habitaciones de vacaciones Madrid › Alquiler por habitaciones de vacaciones San Blas › Bogota: habitación perfecta para vivir y compartir en Madrid
Disponibilidad y precios
Alojamiento
Descripción
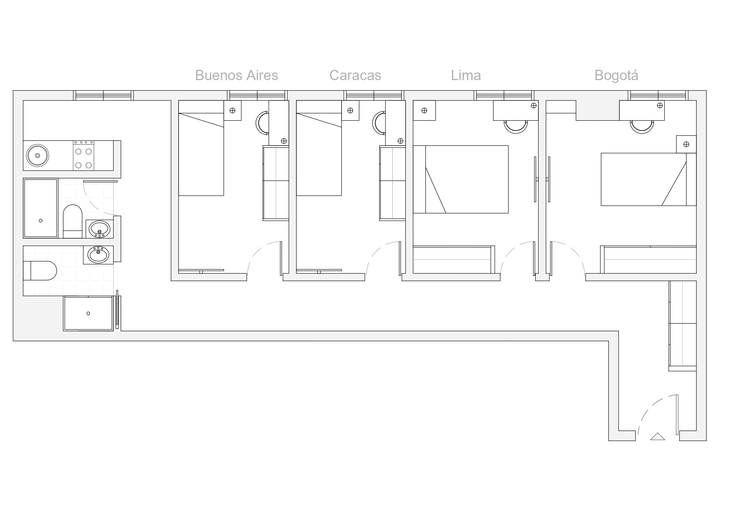
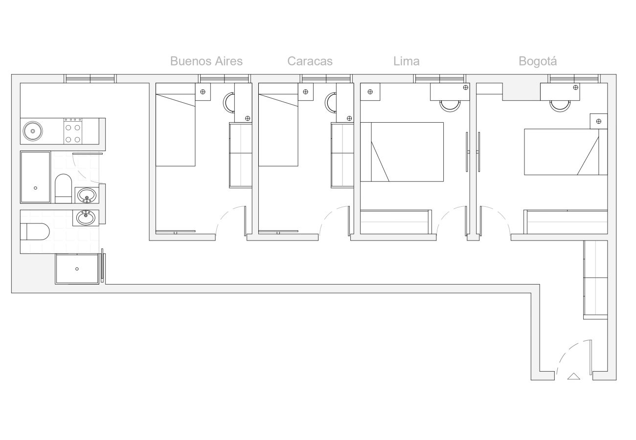
Descubre la vivienda Valdecanillas, un espacio diseñado para ofrecerte comodidad, modernidad y una experiencia única en Comunidad. Ubicada estratégicamente a solo 8 minutos de la Academia CTO, con habitaciones personalizadas con nombre de cuidades, es el lugar perfecto para compartir, crecer y disfrutar de cada momento.
Habitación1– Bogotá: Habitación singular. Situada la primera al entrar a la vivienda, cuenta con todas las comodidades, desde la cama con un colchón premium, canapé con gran almacenaje, escritorio + silla, hasta smart TV, climatización, caja fuerte, plancha+tabla, cargador inalámbrico, cerradura inteligente, 2 juegos de toallas y sábanas.
En Valdecanillas, nos preocupamos por tu bienestar. Por eso, ponemos a tu disposición un conjunto de servicios incluidos para que disfrutes sin preocupaciones:
✔ Seguridad garantizada: Sistema de alarma en toda la vivienda.
✔ Cocina completamente equipada con horno, microondas, vitrocerámica, nevera grande, campana extractora, cubertería, vajilla y más.
✔ Climatización de última generación para tu máximo confort.
✔ Lavadora para mayor comodidad.
✔ Limpieza semanal en zonas comunes para mantener siempre un ambiente impecable.
✔ Conectividad sin límites: Wifi y LAN en toda la casa y habitaciones.
✔Seguridad avanzada con cerraduras inteligentes en todas las estancias.
✔2Baños completos con plato de ducha y secador de pelo.
En Valdecanilla, no solo tendrás un lugar donde vivir, sino un entorno donde compartir experiencias y construir nuevas amistades dentro de una comunidad activa y acogedora.
¡Vive la experiencia Valdecanilla y disfruta de un hogar diseñado para ti!
BARRIO
El barrio de Simancas está ubicado en el distrito de San Blas-Canillejas, se encuentra en una zona residencial que ofrece una variedad de servicios y opciones de transporte.
Restaurantes y Bares: En el barrio se pueden encontrar aproximadamente 169 restaurantes que ofrecen una amplia gama de gastronomía local e internacional.
Algunos de los más destacados incluyen:
1. Restaurante La Taberna de Andana : Un lugar acogedor que ofrece platos tradicionales de la cocina española, especialmente enfocados en la cocina mediterránea y de temporada.
2. El Club de la Cerveza : Perfecto para los amantes de la cerveza artesanal y la comida informal. Ofrecen una selección de tapas y bocados para disfrutar con una buena cerveza.
3. Restaurante El Fogón de Trifón : Un restaurante con una propuesta gastronómica que destaca por sus carnes a la brasa y su ambiente cálido, ideal para reuniones familiares o con amigos.
4. La Vaca y La Huerta : Famoso por su menú que fusiona los sabores de la huerta y la carne de calidad, ofreciendo platos innovadores con productos frescos y locales.
5. Cervecería 100 Montaditos : Un clásico de la zona, ideal para disfrutar de una gran variedad de montaditos (pequeños bocadillos) acompañados de una bebida refrescante, en un ambiente informal y moderno.
6. Restaurante La Panza es Primero : Un lugar con una carta de cocina casera, en donde los platos tradicionales españoles tienen un toque moderno, perfecto para una comida en familia o con amigos.
Ocio: La zona cuenta con múltiples opciones de ocio, incluyendo 18 gimnasios que permiten a los residentes y mantener a los visitantes activos y saludables, además se puede disfrutar de diversas opciones de ocio que enriquecen la experiencia del barrio. Algunas de las más destacadas son:
1. Parque de la Vaguada : Un espacio verde ideal para quienes buscan actividades al aire libre. Este parque ofrece amplias áreas para caminar, correr o hacer picnic, además de contar con zonas de juegos infantiles, lo que lo convierte en un lugar perfecto para familias.
2. Gimnasios y Centros Deportivos : La zona cuenta con varias instalaciones deportivas, incluyendo gimnasios y centros de fitness como VivaGym y Basic Fit , que permiten a los residentes mantenerse activos con clases y equipos modernos. Además, las canchas de tenis y pádel cercanas también ofrecen opciones para quienes disfrutan de los deportes de raqueta.
3. Cines y Ocio Digital : Para los amantes del cine, cerca de la zona se encuentran Cinesa y otras salas de cine que ofrecen una amplia cartelera de estrenos y películas en versión original, lo que atrae a quienes buscan entretenimiento de calidad en pantalla grande.
4. Bolera : Para quienes disfrutan de actividades más lúdicas, hay boleras cercanas donde se puede pasar un rato divertido con amigos o en familia, disfrutando de una partida de bolos o juegos arcade.
5. Teatro y Cultura : Aunque la zona es principalmente residencial, a poca distancia se encuentran algunos centros culturales y teatros donde se pueden disfrutar de representaciones en vivo, conciertos y eventos culturales.
6. Bares y Cafeterías : La oferta de bares y cafeterías es variada y perfecta para aquellos que desean disfrutar de un rato relajado. Espacios como La Casa de las Torrijas o Café de la Luz ofrecen un ambiente acogedor para socializar, tomar una copa o disfrutar de una merienda.
Habitación1– Bogotá: Habitación singular. Situada la primera al entrar a la vivienda, cuenta con todas las comodidades, desde la cama con un colchón premium, canapé con gran almacenaje, escritorio + silla, hasta smart TV, climatización, caja fuerte, plancha+tabla, cargador inalámbrico, cerradura inteligente, 2 juegos de toallas y sábanas.
En Valdecanillas, nos preocupamos por tu bienestar. Por eso, ponemos a tu disposición un conjunto de servicios incluidos para que disfrutes sin preocupaciones:
✔ Seguridad garantizada: Sistema de alarma en toda la vivienda.
✔ Cocina completamente equipada con horno, microondas, vitrocerámica, nevera grande, campana extractora, cubertería, vajilla y más.
✔ Climatización de última generación para tu máximo confort.
✔ Lavadora para mayor comodidad.
✔ Limpieza semanal en zonas comunes para mantener siempre un ambiente impecable.
✔ Conectividad sin límites: Wifi y LAN en toda la casa y habitaciones.
✔Seguridad avanzada con cerraduras inteligentes en todas las estancias.
✔2Baños completos con plato de ducha y secador de pelo.
En Valdecanilla, no solo tendrás un lugar donde vivir, sino un entorno donde compartir experiencias y construir nuevas amistades dentro de una comunidad activa y acogedora.
¡Vive la experiencia Valdecanilla y disfruta de un hogar diseñado para ti!
BARRIO
El barrio de Simancas está ubicado en el distrito de San Blas-Canillejas, se encuentra en una zona residencial que ofrece una variedad de servicios y opciones de transporte.
Restaurantes y Bares: En el barrio se pueden encontrar aproximadamente 169 restaurantes que ofrecen una amplia gama de gastronomía local e internacional.
Algunos de los más destacados incluyen:
1. Restaurante La Taberna de Andana : Un lugar acogedor que ofrece platos tradicionales de la cocina española, especialmente enfocados en la cocina mediterránea y de temporada.
2. El Club de la Cerveza : Perfecto para los amantes de la cerveza artesanal y la comida informal. Ofrecen una selección de tapas y bocados para disfrutar con una buena cerveza.
3. Restaurante El Fogón de Trifón : Un restaurante con una propuesta gastronómica que destaca por sus carnes a la brasa y su ambiente cálido, ideal para reuniones familiares o con amigos.
4. La Vaca y La Huerta : Famoso por su menú que fusiona los sabores de la huerta y la carne de calidad, ofreciendo platos innovadores con productos frescos y locales.
5. Cervecería 100 Montaditos : Un clásico de la zona, ideal para disfrutar de una gran variedad de montaditos (pequeños bocadillos) acompañados de una bebida refrescante, en un ambiente informal y moderno.
6. Restaurante La Panza es Primero : Un lugar con una carta de cocina casera, en donde los platos tradicionales españoles tienen un toque moderno, perfecto para una comida en familia o con amigos.
Ocio: La zona cuenta con múltiples opciones de ocio, incluyendo 18 gimnasios que permiten a los residentes y mantener a los visitantes activos y saludables, además se puede disfrutar de diversas opciones de ocio que enriquecen la experiencia del barrio. Algunas de las más destacadas son:
1. Parque de la Vaguada : Un espacio verde ideal para quienes buscan actividades al aire libre. Este parque ofrece amplias áreas para caminar, correr o hacer picnic, además de contar con zonas de juegos infantiles, lo que lo convierte en un lugar perfecto para familias.
2. Gimnasios y Centros Deportivos : La zona cuenta con varias instalaciones deportivas, incluyendo gimnasios y centros de fitness como VivaGym y Basic Fit , que permiten a los residentes mantenerse activos con clases y equipos modernos. Además, las canchas de tenis y pádel cercanas también ofrecen opciones para quienes disfrutan de los deportes de raqueta.
3. Cines y Ocio Digital : Para los amantes del cine, cerca de la zona se encuentran Cinesa y otras salas de cine que ofrecen una amplia cartelera de estrenos y películas en versión original, lo que atrae a quienes buscan entretenimiento de calidad en pantalla grande.
4. Bolera : Para quienes disfrutan de actividades más lúdicas, hay boleras cercanas donde se puede pasar un rato divertido con amigos o en familia, disfrutando de una partida de bolos o juegos arcade.
5. Teatro y Cultura : Aunque la zona es principalmente residencial, a poca distancia se encuentran algunos centros culturales y teatros donde se pueden disfrutar de representaciones en vivo, conciertos y eventos culturales.
6. Bares y Cafeterías : La oferta de bares y cafeterías es variada y perfecta para aquellos que desean disfrutar de un rato relajado. Espacios como La Casa de las Torrijas o Café de la Luz ofrecen un ambiente acogedor para socializar, tomar una copa o disfrutar de una merienda.
Distribución de dormitorios
1 Cama individual
Distribución de baños y aseos
2 baños
Características más destacadas
Parking cubierto
Acceso Internet
Televisión
Calefacción
Cocina
Nevera
Microondas
Horno
Congelador
Lavavajillas
Vajilla/Cubertería
Utensilios/Cocina
Cafetera
Tostadora
Hervidor de agua
Exprimidor
Servicios obligatorios o incluidos
Limpieza final: 150,97 R$ /reserva
Limpieza Semanal: 120,77 R$ /hora
Limpieza Semanal: 120,77 R$ /hora
Solo aplica cuando la reserva es mayor a 14 noches
Servicios opcionales
Acceso a Internet: Incluido
Parking cubierto: 211,36 R$ /noche
Parking cubierto
El precio es orientativo y tendrás que cerrarlo con el Parking
Calefacción: Incluida
Check In 20h-22h: 211,36 R$ /reserva
Check In 22h-23h: 452,91 R$ /reserva
Cuna: 90,58 R$ /noche
Ropa de cama: 30,19 R$ /persona (cambio cada 30 días)
Shuttle Transfer Service: 301,94 R$ /reserva
Shuttle transfer service +4PAX: 362,32 R$ /reserva
Toallas: 30,19 R$ /persona (cambio cada 30 días)
Organiza tu horario
Los horarios de entrada y salida pueden variar. Introduce las fechas de tu estancia y consulta los horarios.
Fianza (reembolsable)
Importe: 6.038,74 R$ /reserva
Forma de pago: A pagar por transferencia
A pagar al reservar.
Observaciones
- Este alquiler no acepta los grupos de jóvenes (Hasta 18 años)
- No se permite fumar
- No se admiten mascotas
- No se permite fumar
- No se admiten mascotas
Condiciones de reserva
El cliente SIEMPRE perderá el total del prepago realizado
Políticas de cancelación
El cliente SIEMPRE perderá el total del prepago realizado
Desde hoy hasta la entrada
100% del importe del prepago
No presentarse
100% del importe del prepago
Notas adicionales
- Unos días antes de su llegada, deben ponerse en contacto con la agencia de recepción para comunicar su horario de llegada (nº vuelo / barco en su caso) y organizar la recogida de llaves.
- Una vez llegado al destino, por favor contáctenos por teléfono y diríjanse directamente al alojamiento o punto de reunión previamente concertado.
- La recogida de llaves en día festivo tiene un coste adicional.
- Plaza de parking sujeta a disponibilidad.
- Plaza de parking no incluida en el precio.
- Devolución de fianza: por transferencia bancaria entre 5 y 15 días tras la salida del alojamiento.
Mapa y distancias
Calendario de disponibilidad
| Marzo - 2026 | ||||||
| Lun | Mar | Mié | Jue | Vie | Sáb | Dom |
| 1 | ||||||
| 2 | 3 | 4 | 5 | 6 | 7 | 8 |
| 9 | 10 | 11 | 12 | 13 | 14 | 15 |
| 16 | 17 | 18 | 19 | 20 | 21 | 22 |
| 23 | 24 | 25 | 26 | 27 | 28 | 29 |
| 30 | 31 | |||||
| Abril - 2026 | ||||||
| Lun | Mar | Mié | Jue | Vie | Sáb | Dom |
| 1 | 2 | 3 | 4 | 5 | ||
| 6 | 7 | 8 | 9 | 10 | 11 | 12 |
| 13 | 14 | 15 | 16 | 17 | 18 | 19 |
| 20 | 21 | 22 | 23 | 24 | 25 | 26 |
| 27 | 28 | 29 | 30 | |||
| Mayo - 2026 | ||||||
| Lun | Mar | Mié | Jue | Vie | Sáb | Dom |
| 1 | 2 | 3 | ||||
| 4 | 5 | 6 | 7 | 8 | 9 | 10 |
| 11 | 12 | 13 | 14 | 15 | 16 | 17 |
| 18 | 19 | 20 | 21 | 22 | 23 | 24 |
| 25 | 26 | 27 | 28 | 29 | 30 | 31 |
| Junio - 2026 | ||||||
| Lun | Mar | Mié | Jue | Vie | Sáb | Dom |
| 1 | 2 | 3 | 4 | 5 | 6 | 7 |
| 8 | 9 | 10 | 11 | 12 | 13 | 14 |
| 15 | 16 | 17 | 18 | 19 | 20 | 21 |
| 22 | 23 | 24 | 25 | 26 | 27 | 28 |
| 29 | 30 | |||||
| Julio - 2026 | ||||||
| Lun | Mar | Mié | Jue | Vie | Sáb | Dom |
| 1 | 2 | 3 | 4 | 5 | ||
| 6 | 7 | 8 | 9 | 10 | 11 | 12 |
| 13 | 14 | 15 | 16 | 17 | 18 | 19 |
| 20 | 21 | 22 | 23 | 24 | 25 | 26 |
| 27 | 28 | 29 | 30 | 31 | ||
| Agosto - 2026 | ||||||
| Lun | Mar | Mié | Jue | Vie | Sáb | Dom |
| 1 | 2 | |||||
| 3 | 4 | 5 | 6 | 7 | 8 | 9 |
| 10 | 11 | 12 | 13 | 14 | 15 | 16 |
| 17 | 18 | 19 | 20 | 21 | 22 | 23 |
| 24 | 25 | 26 | 27 | 28 | 29 | 30 |
| 31 | ||||||
Tarifas
| FechasPrecio por noche (IVA incluido) | |
|---|---|
| 16/03/2026 · 18/03/2026 |
desde 151 R$ |
| 19/03/2026 · 22/03/2026 |
desde 181 R$ |
| 23/03/2026 · 24/03/2026 |
desde 151 R$ |
| 25/03/2026 · 31/03/2026 |
desde 181 R$ |
| 01/04/2026 · 01/04/2026 |
desde 181 R$ |
| 02/04/2026 · 04/04/2026 |
desde 332 R$ |
